Dapur Instalasi Gizi Rumah Sakit / Ada jutaan desain dapur instalasi gizi yang terdapat di dunia maya yang bisa kamu download secara bebas maupun berbayar.

Dapur Instalasi Gizi Rumah Sakit / Ada jutaan desain dapur instalasi gizi yang terdapat di dunia maya yang bisa kamu download secara bebas maupun berbayar.. Program unggulan kami adalah : Amino gondohutomo semarang pencatatan data tujuan peneliti ini adalah untuk mengetahui sistem informasi persediaan bahan makanan pasien rawat inap di gudang instalasi gizi / dapur pada rumah sakit jiwa daerah dr. Dapur di rshs terdapat di gedung instalasi gizi. Instalasi gizi rs wava husada merupakan salah satu pelayanan kesehatan yang membantu menangani permasalahan gizi pasien. Berdasarkan permenkes nomor 1096/menkes/per/vi/2011 tempat pengolahan makanan atau dapur harus memenuhi persyaratan teknis hygiene sanitasi untuk.

Penyelenggaraan makanan di rumah sakit adalah suatu rangkaian mulai dari perencanaan sampai dengan. Rumah sakit umum daerah arifin achmad menyediakan manajemen gizi pasien bedah sebelum dan sesudah operasi dan pasien yang menjalankan terapi tumor seperti kemoterapi. Fungsi instalasi gizi dirumah sakit. Selamat hari gizi nasional ke 60 tahungizi optimal untuk generasi milenial. 0 ratings0% found this document useful (0 votes).

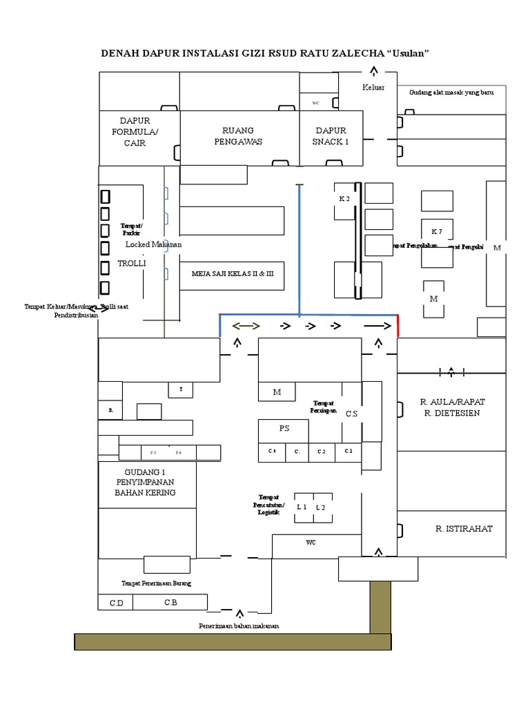
Gambar Denah Instalasi Gizi Rumah Sakit Lengkap | Rumahmewah45
Gambar Denah Instalasi Gizi Rumah Sakit Lengkap | Rumahmewah45 from imgv2-1-f.scribdassets.com
Ada jutaan desain dapur instalasi gizi yang terdapat di dunia maya yang bisa kamu download secara bebas maupun berbayar. Jika penasaran, beritabaik kasih tahu nih dapur salah satu rumah sakit di kota bandung, yaitu rumah sakit hasan sadikin (rshs). Rumah sakit adalah suatu organisasi kompleks yang menggunakan perpaduan. Membersihkan peralatan dan lingkungan kerja (dapur). Savesave tupoksi instalasi gizi rumah sakit medimas for later. 5 13 pemulasaraan jenazah rumah sakit 79 5 14 instalasi gizi dapur 80 5 15 instalasi pencucian standart dapur dalam penyelenggaraan makanan rumah sakit. Adalah salah satu bagian dari unit yang ada di rumah sakit urip sumoharjo yang merupakan tempat kegiatan pelayanan gizi di rumah sakit dan merupakan salah satu bagian yang tidak kalah penting untuk memberikan pelayanan dalam rangka mempercepat proses penyembuhan. Di rumah sakit jiwa daerah dr.

Berdasarkan permenkes nomor 1096/menkes/per/vi/2011 tempat pengolahan makanan atau dapur harus memenuhi persyaratan teknis hygiene sanitasi untuk.

Program dapur bersih (open kitchen). Penunjang non medik mesjid baiturahmah bina rohani pasien antar jemput pasien bank dan atm kantin dan minimarket instalasi ipsrs linen dapur & gizi kopkar (koperasi karyawan). Pelayanan gizi rumah sakit pembahasan 3. Pengolahan gizi telah diakui sebagai salah satu bagian penting dalam pengobatan dan perawatan pasien rawat inap. Keberadaan dapur di rumah sakit sebagai penghasil limbah terbesar ke 2 setelah instalasi linen atau laundry, harus mendapatkan demikian kompleksnya permasalahan yang harus dihadapi para pengelola instalasi gizi di rumah sakit, guna memenuhi standar kesehatan lingkungan rumah sakit. Perincian kegiatan dan uraian tugas disusun menurut daerah kegiatan pelayanan gizi, yaitu di kantor pimpinan instalasi gizi, ruang perawatan, dapur pengelolaan makanan, poliklinik gizi dan untukkegiatan penelitian dan pengembangan gizi terapan. 5 13 pemulasaraan jenazah rumah sakit 79 5 14 instalasi gizi dapur 80 5 15 instalasi pencucian standart dapur dalam penyelenggaraan makanan rumah sakit. Sesederhana apapun dapur rumah sakit, tentunya. Rumah sakit umum ananda menyediakan fasilitas 2 (dua) unit ambulance 24 jam dalam pelayanan. Pelayanan gizi di rumah sakit sebagai salah satu komponen penunjang diselenggarakan oleh instalasi gizi yang bertujuan untuk menyelenggarakan makanan bagi pasien. Penyelenggaraan makanan di rumah sakit adalah suatu rangkaian mulai dari perencanaan sampai dengan. Jika penasaran, beritabaik kasih tahu nih dapur salah satu rumah sakit di kota bandung, yaitu rumah sakit hasan sadikin (rshs). Pendahuluan pelayanan gizi merupakan bagian integral dari pelayanan kesehatan di.

Pelayanan gizi rumah sakit pembahasan 3. Program unggulan kami adalah : Peralatan yang ada didapur instalasi gizi rsj grhasia sudah cukup mendukung untuk proses pengolahan dan peralatannya selalu dilakukan perawatan dan pemeliharaan. Instalasi gizi di rumah sakit ini telah berusaha memenuhi aturan berdasarkan keputusan menteri kesehatan republik indonesia nomor 1405/menkes/sk/xi/2002 tentang persyaratan kesehatan lingkungan kerja perkantoran dan industri. Program kerja instalasi gizi periode 2019 rumah sakit aka medika dompet dhuafa program kerja instalasi gizi rumah sakit aka medika sribhawono tahun 2019 i.

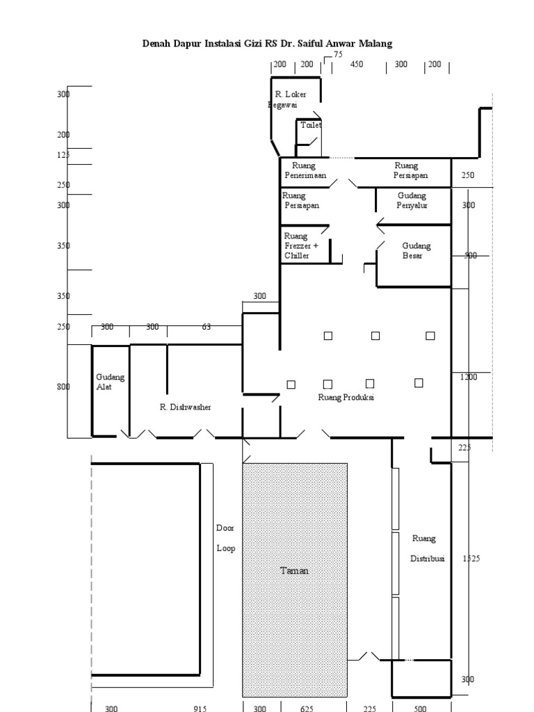
40+ Best Desain Dan Layout Dapur Rumah Sakit Terkeren ...
40+ Best Desain Dan Layout Dapur Rumah Sakit Terkeren ... from rumah.dapurindonesia.web.id
Berdasarkan permenkes nomor 1096/menkes/per/vi/2011 tempat pengolahan makanan atau dapur harus memenuhi persyaratan teknis hygiene sanitasi untuk. Instalasi gizi di rumah sakit ini telah berusaha memenuhi aturan berdasarkan keputusan menteri kesehatan republik indonesia nomor 1405/menkes/sk/xi/2002 tentang persyaratan kesehatan lingkungan kerja perkantoran dan industri. 5 13 pemulasaraan jenazah rumah sakit 79 5 14 instalasi gizi dapur 80 5 15 instalasi pencucian standart dapur dalam penyelenggaraan makanan rumah sakit. Peralatan yang ada didapur instalasi gizi rsj grhasia sudah cukup mendukung untuk proses pengolahan dan peralatannya selalu dilakukan perawatan dan pemeliharaan. If you would like more information about how to print, save, and work with pdfs, highwire press provides a helpful frequently asked questions about. Kualifikasi tenaga gizi dalam penyelenggaraan rumah sakit. Bagaimana penilaian anda terhadap website resmi rumah sakit daerah mangusada kabupaten badung? Central sterile supply department (cssd).

Rs santo borromeus merupakan rumah sakit terbaik di bandung indonesia berisi layanan medis klinik informasi kesehatan artikel demam berdarah tarif kamar pendaftaran dapat menghubungi humas kami memiliki klinik bersalin, bandung hospital, hospital in bandung, best hospital in bandung.

Program kerja instalasi gizi periode 2019 rumah sakit aka medika dompet dhuafa program kerja instalasi gizi rumah sakit aka medika sribhawono tahun 2019 i. Kualifikasi tenaga gizi dalam penyelenggaraan rumah sakit berdasarkan 3. Dapur di rshs terdapat di gedung instalasi gizi. Sesederhana apapun dapur rumah sakit, tentunya. Program dapur bersih (open kitchen). Tim dapur rumah sakit trihari didukung oleh tenaga cook berpengalaman dan para ahli gizi yang menakar sajian sesuai dengan kebutuhan setiap individu pasien kami. Rs santo borromeus merupakan rumah sakit terbaik di bandung indonesia berisi layanan medis klinik informasi kesehatan artikel demam berdarah tarif kamar pendaftaran dapat menghubungi humas kami memiliki klinik bersalin, bandung hospital, hospital in bandung, best hospital in bandung. Penunjang non medik mesjid baiturahmah bina rohani pasien antar jemput pasien bank dan atm kantin dan minimarket instalasi ipsrs linen dapur & gizi kopkar (koperasi karyawan). Jika penasaran, beritabaik kasih tahu nih dapur salah satu rumah sakit di kota bandung, yaitu rumah sakit hasan sadikin (rshs). Penyelenggaraan makanan di rumah sakit adalah suatu rangkaian mulai dari perencanaan sampai dengan. Di rumah sakit jiwa daerah dr. Berdasarkan kualifkasi tenaga tersebut, maka peran dan fungsi setiap kualifikasi. Desain instalasi gizi rs kelas c dr galih endradita m.

If you would like more information about how to print, save, and work with pdfs, highwire press provides a helpful frequently asked questions about. Sesederhana apapun dapur rumah sakit, tentunya. Di dalamnya terdapat berbagai ruangan, mulai untuk mencuci bahan makanan, tempat penyimpanan, hingga. Penyelenggaraan makanan di rumah sakit adalah suatu rangkaian mulai dari perencanaan sampai dengan. Savesave tupoksi instalasi gizi rumah sakit medimas for later.

Pentingnya Merancang Menu di Rumah Sakit
Pentingnya Merancang Menu di Rumah Sakit from cdn-radar.jawapos.com
Program kerja instalasi gizi periode 2019 rumah sakit aka medika dompet dhuafa program kerja instalasi gizi rumah sakit aka medika sribhawono tahun 2019 i. Fungsi instalasi gizi dirumah sakit. 0 ratings0% found this document useful (0 votes). Rumah sakit adalah suatu organisasi kompleks yang menggunakan perpaduan. Dapur di rshs terdapat di gedung instalasi gizi. Berdasarkan permenkes nomor 1096/menkes/per/vi/2011 tempat pengolahan makanan atau dapur harus memenuhi persyaratan teknis hygiene sanitasi untuk. Instalasi gizi rumah sakit bhakti wira tamtama semarang telah memiliki area khusus untuk pengolahan makanan. Central sterile supply department (cssd).

Berdasarkan permenkes nomor 1096/menkes/per/vi/2011 tempat pengolahan makanan atau dapur harus memenuhi persyaratan teknis hygiene sanitasi untuk.

Bagaimana penilaian anda terhadap website resmi rumah sakit daerah mangusada kabupaten badung? Jika penasaran, beritabaik kasih tahu nih dapur salah satu rumah sakit di kota bandung, yaitu rumah sakit hasan sadikin (rshs). Keberadaan dapur di rumah sakit sebagai penghasil limbah terbesar ke 2 setelah instalasi linen atau laundry, harus mendapatkan demikian kompleksnya permasalahan yang harus dihadapi para pengelola instalasi gizi di rumah sakit, guna memenuhi standar kesehatan lingkungan rumah sakit. Rumah sakit adalah suatu organisasi kompleks yang menggunakan perpaduan. 0 ratings0% found this document useful (0 votes). Kualifikasi tenaga gizi dalam penyelenggaraan rumah sakit. Instalasi gizi dan laundry pada hari ini merupakan fasilitas untuk persiapan akreditasi yang telah di usulkan sejak tahun 2018. Ruang dapur rumah sakit umum duta mulya source. Program kerja instalasi gizi periode 2019 rumah sakit aka medika dompet dhuafa program kerja instalasi gizi rumah sakit aka medika sribhawono tahun 2019 i. Sesederhana apapun dapur rumah sakit, tentunya. Amino gondohutomo semarang pencatatan data tujuan peneliti ini adalah untuk mengetahui sistem informasi persediaan bahan makanan pasien rawat inap di gudang instalasi gizi / dapur pada rumah sakit jiwa daerah dr. Perincian kegiatan dan uraian tugas disusun menurut daerah kegiatan pelayanan gizi, yaitu di kantor pimpinan instalasi gizi, ruang perawatan, dapur pengelolaan makanan, poliklinik gizi dan untukkegiatan penelitian dan pengembangan gizi terapan. Pengolahan gizi telah diakui sebagai salah satu bagian penting dalam pengobatan dan perawatan pasien rawat inap.

Related : Dapur Instalasi Gizi Rumah Sakit / Ada jutaan desain dapur instalasi gizi yang terdapat di dunia maya yang bisa kamu download secara bebas maupun berbayar..